120平温暖小资美式风复式公寓

[复制链接]

28

主题

0

回帖

0

积分

新手上路

积分
0
装修33天 发表于 2016-10-31 18:41:33 | 显示全部楼层 |阅读模式

▲ 进门玄关区,仿古花砖铺地,一整排实木鞋柜收纳能力强大,皮质的换鞋凳也具备一定收纳功能,穿衣镜加衣钩,各种功能齐全


▲ 客厅墙面是奶咖色,配上美式的家具,整体温馨舒适有调调


▲ 复古铆钉皮沙发配上英美国旗图案的抱枕,客厅空间紧凑而美好


▲ 电视背景对称设计,隐藏了老人房的入室房门,功能性和美观性得到平衡


▲ 餐厅设计成卡座,一幅可爱的手绘图案


▲ 厨房用彩色的小砖随机拼贴,淡淡的彩色和白色的橱柜相互衬托


▲ 老人房简单温馨


▲ 沿着楼梯拾级而上


▲ 一幅手绘田园风景让凹凸的墙面更有意境


▲ 书房适合静静的看书,咖色的家具沉稳得恰到好处


▲ 主卧在奶咖的基调上配了一些芥末绿,气氛静瑟温馨


▲ 阳台一角设计的梳妆台


▲ 卫生间蓝色和浅咖色的瓷砖搭配铺贴,自然混搭


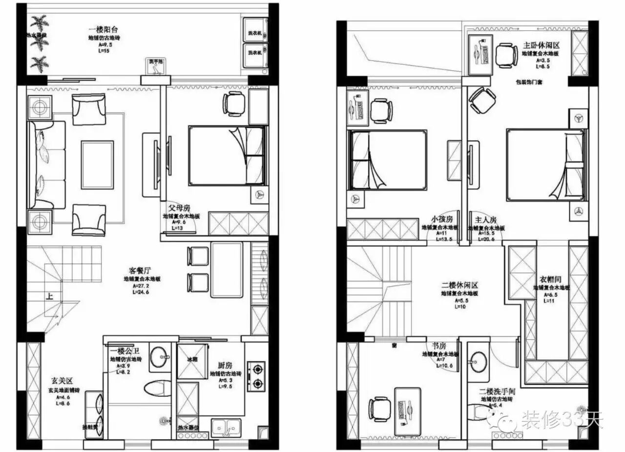
▲ 平面布置图

设计 | 迪尚设计 张君(深圳
欢迎业主、设计师、装修公司投稿照片
公众号商务合作:king194316


装修33天,33天学装修!提供海量装修美图,实用装修经验,在线装修达人咨询! 作者微信号:zhuangxiu33
你喜欢看