93平实用现代清新宜家风三室

[复制链接]

28

主题

0

回帖

0

积分

新手上路

积分
0
装修33天 发表于 2016-11-1 09:29:58 | 显示全部楼层 |阅读模式

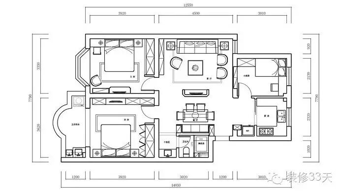
▲ 93平,半包7万,主材8万,家具5万,原有的结构做了些改动,打通了客厅和餐厅,让空间显得更加宽敞


▲ 客厅和餐厅之间采用矮墙做隔断,同时兼具电视墙作用


▲ 沙发背景造型由一圈茶镜玻璃围着蓝色蒲公英图案的壁纸组成


▲ 餐厅设计了卡座,一物多用,增加了储物空间,背景处理和沙发背景呼应


▲ 家具基本选用原木色纯实木家具,环保性更好也更耐用


▲ 客厅一角小景


▲ 碎花风格的单人沙发背后的入墙式小书柜实用美观


▲ 蓝色的布艺沙发,在整体原木色的自然风格中点缀的刚刚好


▲ 电视矮墙的造型简单且不占空间


▲ 进门一侧是餐厅,另外一边设计了综合柜体包含了鞋柜和放置冰箱的位置


▲ 进门视角


▲ 厨房分色设计,上浅下深,下柜是木纹门板,上柜是白色门板


▲ 卧室简洁实用,色调温馨


▲ 主卧小飘窗配上拼色窗帘,清新淡雅


▲ 儿童房一面墙用了壁纸,增添了一些童趣


▲ 卫生间干区背景用花砖铺设,配上偏美式的浴室柜也挺好看


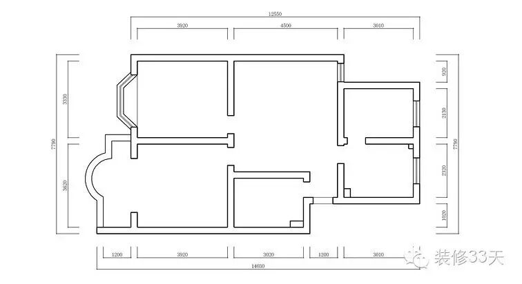
▲ 原始结构图


▲ 平面布置图

设计 | 迪赛设计(杭州)
欢迎业主、设计师、装修公司投稿照片
公众号商务合作:king194316


装修33天,33天学装修!提供海量装修美图,实用装修经验,在线装修达人咨询! 作者微信号:zhuangxiu33
你喜欢看