170平现代简美清新大宅婆婆给儿媳装婚房

[复制链接]

28

主题

0

回帖

0

积分

新手上路

积分
0
装修33天 发表于 2016-11-3 19:00:50 | 显示全部楼层 |阅读模式

▲ 看到这案例信息的时候,说是婆婆给儿子儿媳装的婚房,这风格品味,看来已经打败了全国90%的婆婆,进门玄关区铺的花砖,用一条黄色做旧的鼓凳当换鞋凳点缀


▲ 客厅电视背景做了简单的壁炉造型,深咖色美式家具搭红色单人椅和方凳


▲ 壁炉造型的颜色搭配清爽,边上红色的回字纹窗帘很出挑


▲ 复古皮沙发和落地灯,沙发背景格子柜设计增加实用性


▲ 从客厅望向餐厅方向


▲ 蓝色和绿色搭配的水洗实木餐椅,给餐厅增添了清新气氛


▲ 墙上一幅油画点缀


▲ 公共区域通往卧室的走廊


▲ 书房采用双开门设计,一面墙是书桌,一面墙是书柜,靠窗放置了一张白色榻,造型有点像罗汉榻


▲ 主卧床尾是一整排的衣柜,收纳空间充足,浅绿的窗帘给浅色调的空间增添了一些趣味


▲ 床边的主卫设计成干湿分离,门口造型打造成圆弧形


▲ 干区的瓷砖铺贴方式很美式


▲ 卫生间采用灰色面包砖工字铺,加上一部分花砖的点缀


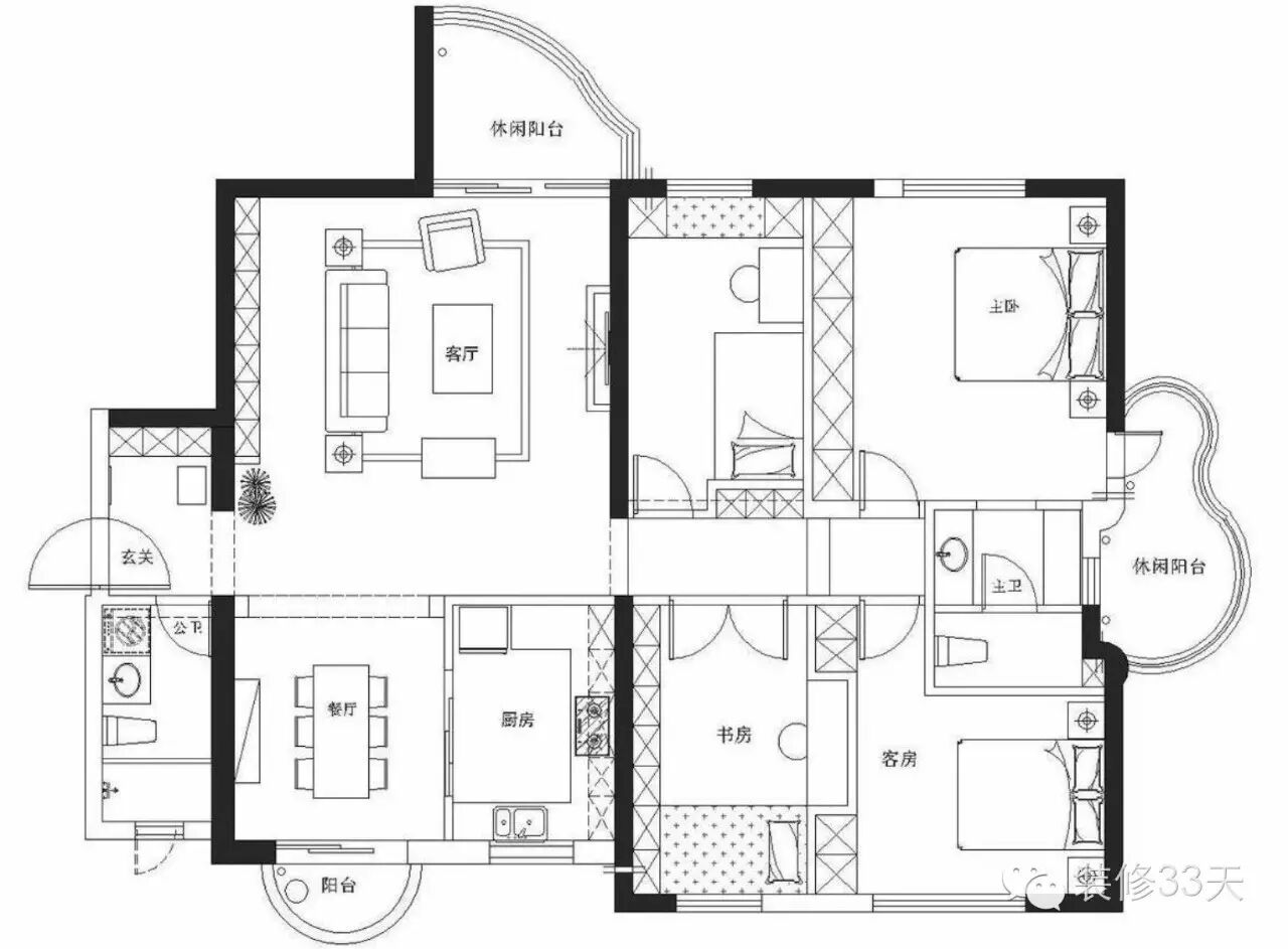
▲ 平面布置图

设计师 | 张莉(深圳
欢迎业主、设计师、装修公司投稿照片
公众号商务合作:king194316


装修33天,33天学装修!提供海量装修美图,实用装修经验,在线装修达人咨询! 作者微信号:zhuangxiu33
你喜欢看