神改造丨高颜值又实用的开放式厨房,你喜欢吗?

[复制链接]

14

主题

0

回帖

0

积分

新手上路

积分
0
08装修教室 发表于 2016-11-3 22:09:18 | 显示全部楼层 |阅读模式


                        厨房,是家最有温度的地方。俗话说金厨银卫,需要花重金打造的厨房,是不是得好好设计一番呢?
本期神改造网友X7家,原本户型是个L型小厨房,改造后变成了14.6平餐厨一体的大空间。颜值和实用兼有,这样的厨房怎会不爱?

               
房子是89平,最后实际有100平。因为赠送面积很多很多,我自己也还喜欢下厨,所以我的想法就是敲掉一面墙,让厨房变大变宽敞!!

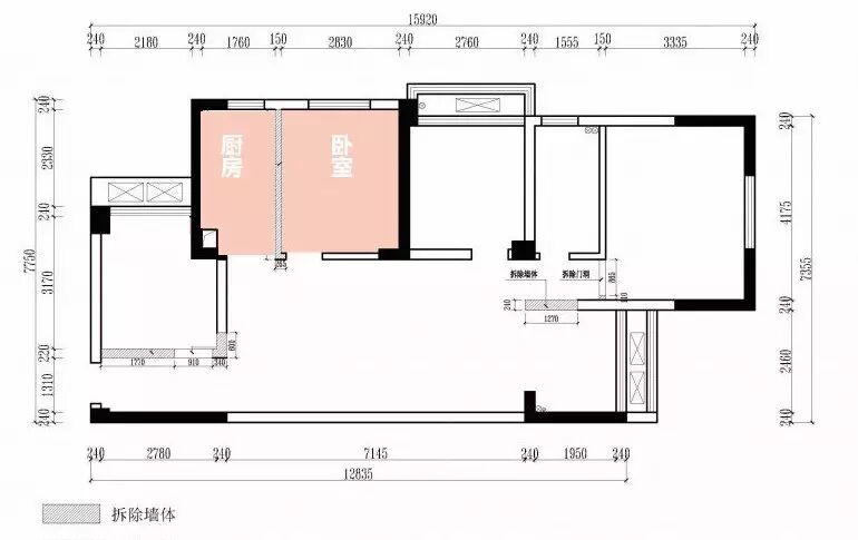
▼请看原户型图纸:
▲改造区域:需要敲掉厨房和卧室中间的墙

我觉得这个户型还算周正,但不是南北通透,只有主卧跟阳台是朝南。整个房子我最喜欢的就是开放式厨房,哈哈哈哈哈......不过这个厨房造价不菲啊,这就是痛并快乐着。


▲敲掉墙后宽敞透亮的大厨房,足足有14.6平

▼整个房子的亮点之一终于有点雏形了——开放式厨房餐厅:
当我站在厨餐门口,我就一直在YY站在灶台面前炒出一桌美味佳肴,先放到我的岛台上,然后朋友拿到大餐桌上,再然后一群朋友坐在一起开吃!哈哈,那一个开心啊!

下图则是我的大餐厅厨房砸完墙的平面图、YY图:



厨房我觉得都是我喜欢的,可是喜欢的都是金钱堆起来的啊,那又有什么办法呢,哈哈!
▼户型改造后的设计如下:

▼餐厅门是一个1.6m的玻璃推拉门,这样客厅就会更加明亮,而不显得暗。


▼4m多的橱柜,1.5m长的餐桌足够5、6个朋友吃吃喝喝谈天说地。


▼关于油烟,开放式的餐厨,买个好点的抽油烟机就不会有问题了。


▼大厨房配大单槽,就是这么爽!


▼为了保证厨房的美观性,开放式厨房台面不应放过多的炊具杂物。3.3m长+2.7m高+70cm深的高柜,不仅能容纳一个双开门冰箱,还能放许多杂物,不愁没收纳空间了。


▼柜子隔板的长短不一,桶子扫帚什么杂物都可以往里面放,给洗手间腾出了空间,美观又实用!


以上就是X7家花心思重金打造的厨房了,痛并快乐着!!!

08我家网(08wojia.com)是长沙装修业主的最热聚集地。她既是装修业主学习装修知识,交流装修经验,记录装修过程的分享互助平台,也是为装修业主提供装修设计预算、装修施工、装修建材产品团购、装修过程及售后监督的装修全流程服务平台。 作者微信号:myhome2008
你喜欢看