为什么家里怎么装都没有样板房美?

[复制链接]

2

主题

0

回帖

0

积分

新手上路

积分
0
时尚创意家居 发表于 2016-11-4 02:16:27 | 显示全部楼层 |阅读模式
买过房的都知道,
买房时一般都会带着去看看样板房,
为什么……
80%的人看过样板房以后
心就留在样板房里了!
然后就决定砸锅卖铁,
此生非它不买。



可是……可是……
当你砸锅卖铁欠了一屁股外债把房子买下以后,
却发现:不是那么回事……



因为:样板房是拿钱砸的!
而你的钱已经用来买房了……

不信,接着看呐!???

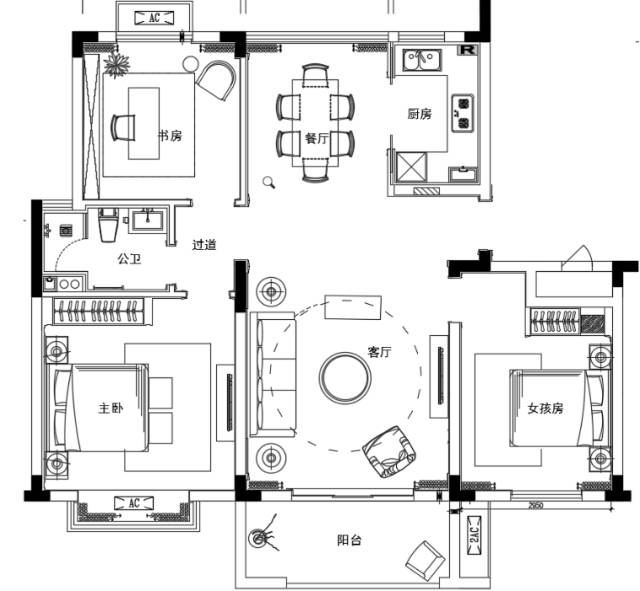
平面图
◆  ◆  ◆



客厅
◆  ◆  ◆



样板房无论在硬装还是软装上都是下足功夫的



沙发背景纯实木打造,不用实木是体现不出那种质感的
关键问题:实木多贵呀!



饰品摆件也是换了又换,不知道换了多少个,最后选定一个最合适的



样板房里,一个独立的沙发也不是让坐的,这是看的,观赏的……

餐厅
◆  ◆  ◆



餐厅璀璨的吊灯真的真的看着就好贵
但是人家也漂亮呀



餐桌上的摆设都极具观赏价值,试问,谁家平时不用的时候还把餐桌摆的满满的!
我家摆的满,都是杂物



每一件饰品都精心雕琢,每天都有专业保洁擦了又擦
反正我是做不到,你呢?
主卧
◆  ◆  ◆



看到这个卧室,真心希望这是我的房间啊!枕头、抱枕、靠枕一样样的,都是装饰品!
试想一下你在上面睡过一晚,第二天……



可爱的娃娃,可爱的床头饰品,可爱的暖黄色,可爱的样板房!
这都不是真的
次卧
◆  ◆  ◆



大爱床尾凳,毛茸茸的,点缀房间就靠它了,雪白雪白的……
重点就是雪白雪白的,我一定不想洗……



皮艺柜子加不锈钢包边,这个柜子是皮艺的,皮艺的,艺的,的……
我不想知道这个柜子多少钱!

书房
◆  ◆  ◆



家庭式中央空调都隐藏的很完美,在这个样板房里,你看不到一点累赘的东西,可是你家呢?不能说你家不美,只能说是生活气息太浓重!
精选全球创意家居!内容涉及装饰装修+室内设计、创意家具设计、精美家居装饰品、新奇创意杂货、最新创意设计,个性的桌子,奇葩的桌子,无创意不居家。 微信号:jiaju55
你喜欢看