法国里昂的橙色立方,不得不惊叹其超强的创意

[复制链接]

12

主题

0

回帖

0

积分

新手上路

积分
0
A963设计网 发表于 2016-11-8 01:04:35 | 显示全部楼层 |阅读模式
点上方A963设计网,【第1032期】


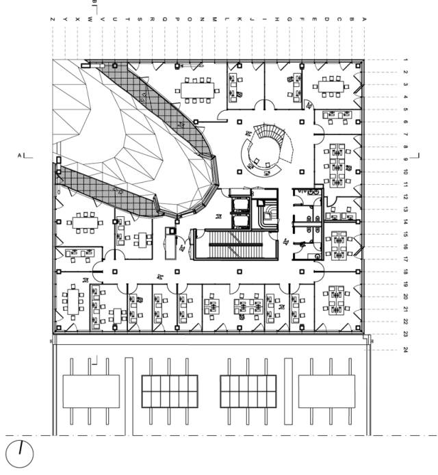
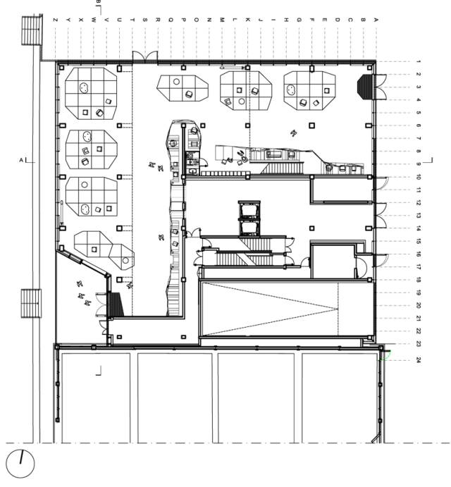
巴黎建筑事务所jakob + macfarlane architects(dominique jakob, brendan macfarlane)的新作品“橙色方体”,这座商务文化综合体位于法国里昂。该项目作为一项城市规划方案,丰富了里昂码头空间。这个五层的立方体反映了sa?ne河河水的流动,并探讨了建筑的减法设计和建筑缺口对空间质量的影响。
在一个29 × 33米定期为骨架,独立的位于基地中央,临近的码头则作为该地块显著的工业化背景,对设计中最引人注目的元素 -它明亮的橙色阴影 -轻质的外表皮上刻有镂空的像素化图案,这些图案模仿了泼洒的水滴形,同时也反映了临近河流的形态。外部皮肤是光门面,用一种怪异的模式类似于尾随水滴刺破,一到邻近河流的流量的参考。这种多孔信封让视线和自然采光,同时为建筑建立了独特的身份。
从空旷的观点从一个室外阳台空间展馆的概念的灵感来自于加的斯的航海历史,特别是帆船航行的船只。大多数人享受一个漫步在加迪斯海港的感觉。人们不会意识到在该地区的历史意义:首先,它是作为的美洲西班牙殖民统治的跳板使用;第二的的船舶类型的任务所需要的是内置非常地面上。
在上下文中的河流和周围结构屋顶露台


建筑首层层高是普通层的两倍,建筑师在此设置了一个设计展厅。其中展厅的室内设计也是由 jacob + macfarlane 建筑事务所操刀设计的,主要风格延续了“橙色方体”方案的建筑语言。设计师将外立面的处理引用到室内,并将其三维化,设计了一个L形墙,包裹了整个空间。墙面上打了60个圆洞用来陈列家具作品,这种通透的处理也成为首层循环流通的主要方式。
显示墙古拉波莱尔办公楼层楼梯光外观细节3D渲染单元的显示墙平面图平面图


更多相关热点阅读▼

?有没有那么一张床,让你在户外肆无忌惮【A963第913期】
?大师手泽,授艺传情:梁思成手绘古建图
?光影的艺术呈现,赋予了建筑生命。。
?十几年的功夫,它竟然完成了一个巨大的“胃”……
?从洛杉矶、雅典、迪拜到俄罗斯,艾特奖全球推广重点历程大回顾

A963设计网-建筑与室内设计师的共同家园,注册设计师会员超过22万,注册设计企业超过7万家……网址:www.A963.com 作者微信号:a963com
你喜欢看