折中主义建筑风,复古思潮的浪漫意大利餐厅,在这里和朋友一起虚度光阴吧!

[复制链接]

12

主题

0

回帖

0

积分

新手上路

积分
0
A963设计网 发表于 2016-11-9 18:21:08 | 显示全部楼层 |阅读模式
点上方A963设计网,【第1033期】


折中主义建筑是十九世纪上半叶至二十世纪初,在欧美一些国家流行的一种建筑风格。折中主义建筑师任意模仿历史上各种建筑风格,或自由组合各种建筑形式,他们不讲求固定的法式,只讲求比例均衡,注重纯形式美。

位于尤卡坦半岛梅里达市中心一处名为Santa Lucia公园的地方,有一家意大利餐厅,以“折中主义建筑风格”为主题,这一具有殖民时代建筑风格的历史公园是当地国人作为进行传统歌唱舞蹈的文化传承地方。
如何将传统的建筑风格和风格化的殖民地建筑元素有机结合并展现出具有现代感的餐馆设计风格,创造一个令人愉悦的用餐环境是任务的重点。
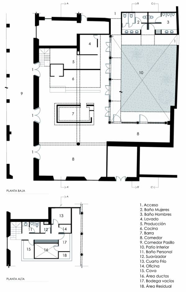
吧台采用了桃花心木和白色大理石设计:桃花心木隔断的大酒柜悬挂在屋顶上,不同的格栅储藏着各类酒品,下方的大理石吧台精巧而简洁;吧台对面是一个开放式厨房,与现代感十足的吧台设计形成鲜明对比,这里几乎全部采用原色木设计。


更多相关热点阅读▼

?原来外国的中餐厅设计是这样子的【A963第598期】
?逐渐消失的建筑 客家围龙屋【A963第558期】
?法国里昂的橙色立方,不得不惊叹其超强的创意
?从洛杉矶、雅典、迪拜到俄罗斯,艾特奖全球推广重点历程大回顾
?2016艾特奖终评告竣,中国工程院院士崔愷、孟建民等五大名师亲掌尺墨

A963设计网-建筑与室内设计师的共同家园,注册设计师会员超过22万,注册设计企业超过7万家……网址:www.A963.com 作者微信号:a963com
你喜欢看