129平北欧简约原木自然混搭

[复制链接]

28

主题

0

回帖

0

积分

新手上路

积分
0
装修33天 发表于 2016-11-11 23:25:52 | 显示全部楼层 |阅读模式

▲ 建筑面积129,使用面积100平,设计和半包费用10万左右,不算电器总花费45-50万,各种混搭风格


▲ 主沙发是黑色皮沙发,配的中式太师椅


▲ 玻璃茶几、防兽皮地毯、乔布斯和V字仇杀队抱枕,一切都很有意思


▲ 电视背景是凹凸不平的木材铺就


▲ 沙发边上的三根白桦木很特别


▲ 这是三根真实的白桦木哦


▲ 远处是餐厅和厨房


▲ 原木台面和墙上的鹿头装饰是北欧风,水泥粉光墙面和一排射灯又有工业风的气质


▲ 墙上的鹿头装饰


▲ 厨房一移门相隔在餐厅的边上


▲ 实木(橡木)门板的橱柜整体五千一延米


▲ 进门玄关处,吊顶铺的是地板


▲ 进门右手边的柜子,柜门是间隔的镜面


▲ 书房玻璃开门,有点像办公司


▲ 吊顶是地板,书柜和柜子都是实木的


▲ 一切都是温暖的深林气息


▲ 展示柜上放了一个电视


▲ 两面墙都是柜子,一个装满了书


▲ 深色的客卫


▲ 主卫同样是深色的,放了浴缸


▲ 洗手柜也是全实木的


▲ 次卧兼衣帽间


▲ 次卧的地台可以随时变床


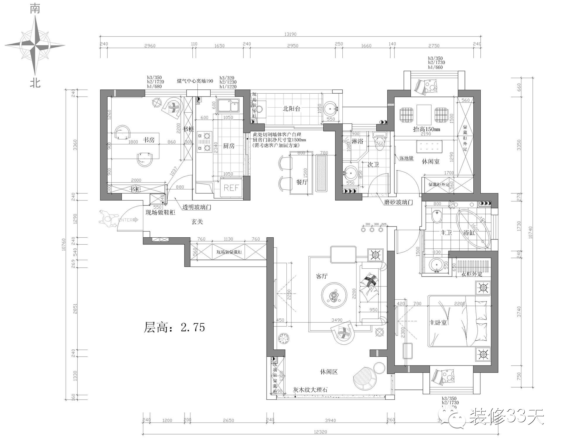
▲ 平面布置图

设计 | 越尚设计(上海
欢迎业主、设计师、装修公司投稿照片
公众号商务合作:king194316

装修33天,33天学装修!提供海量装修美图,实用装修经验,在线装修达人咨询! 作者微信号:zhuangxiu33
你喜欢看