这样一间破旧农舍,居然变成了他的创造空间

[复制链接]

12

主题

0

回帖

0

积分

新手上路

积分
0
A963设计网 发表于 2016-11-13 12:00:11 | 显示全部楼层 |阅读模式
点上方A963设计网,【第1036期】

一间破旧农舍
如何让其焕然一新?
成为古朴风格的现代居室
理想中的世外桃源?

  
现代的设计师们都热衷于旧屋改造,经过魔术般的变化,农舍保留了原始的古朴风格,更增添了时尚的元素,让两种风格相互交融,呈现独特的风格面貌。



Stockerweg 11是Reim地区最老的一栋房屋,建于1750年,是一间两层高的农舍。其主人要保留这座历史建筑的独特性。


建筑设计的概念基于两点期待:
保留老建筑的实质
同时引入创造性的空间




↓改造前与改造后的房屋








于是建筑师Peter Haimerl创造了一个塑造空间造型的决定性构件:一个与地面呈45°角的混凝土方体,它与屋顶的桁架整合在一起,沿着三角形的屋面从房屋的一侧延伸至另一侧。





在方体的顶端,原来的马厩的位置,建筑师设计了一间小的画廊,其中尽可能地保留了原来建筑的特征,并使它们重新回到视野之中。

↓ 混凝土方体是设计的神来之笔


↓ 一层起居室   






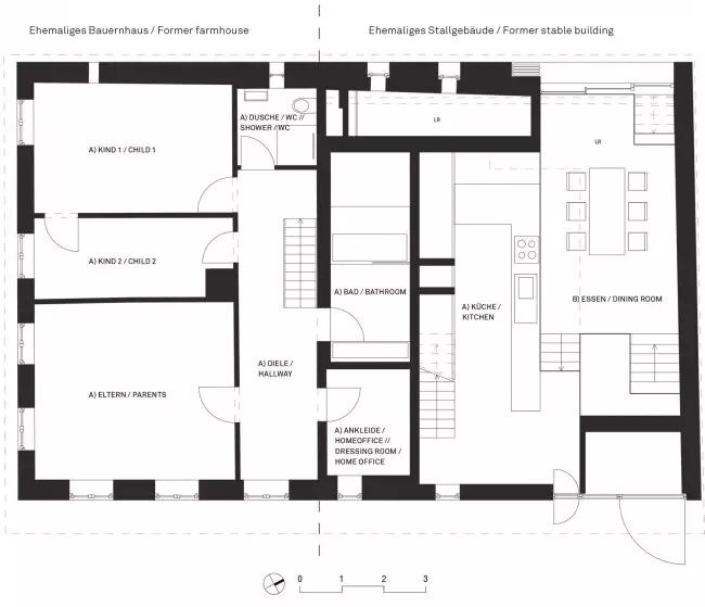
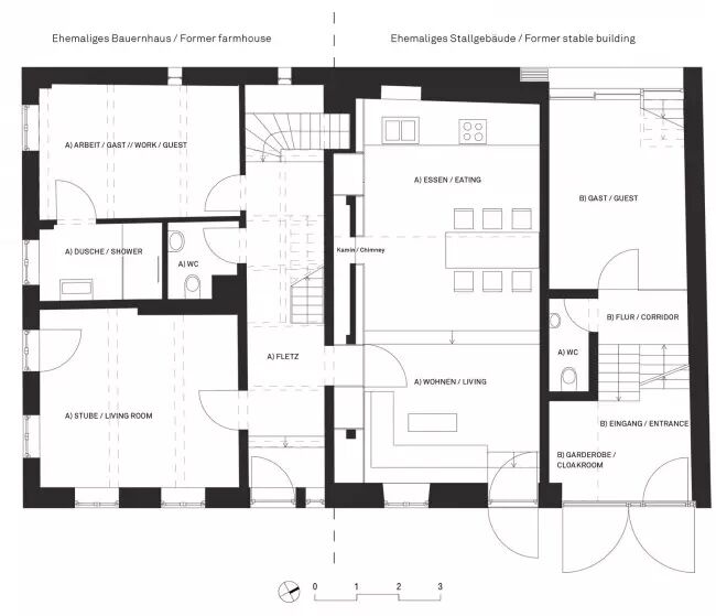
原有结构框架中的房间,与方体元素交织在一起,形成别具特色的空间。建筑分为东西两个单元,彼此分隔却又通过交通空间相联通。



↓ 楼梯






↓ 墙面保留原来的开窗







↓ 平面设计图








更多相关热点阅读▼

?日本木屋,堪称传统木与现代艺术的完美结合
?清雅含蓄,如何抓住设计中的那些新中式元素?
?独家剧透:2016艾特奖五大刷屏看点大爆料
?【微站】朱文标:注重城市与建筑的内在联系,强调环境和谐统一。
?缅怀大师jaya,用世俗的眼光“亵渎”他留在中国的仙居
点击下方“阅读原文”,查看朱俊翔微网站。
A963设计网-建筑与室内设计师的共同家园,注册设计师会员超过22万,注册设计企业超过7万家……网址:www.A963.com 作者微信号:a963com
你喜欢看