25万搞定89平无印原木风挑高江景房

[复制链接]

28

主题

0

回帖

0

积分

新手上路

积分
0
装修33天 发表于 2016-11-15 13:06:22 | 显示全部楼层 |阅读模式

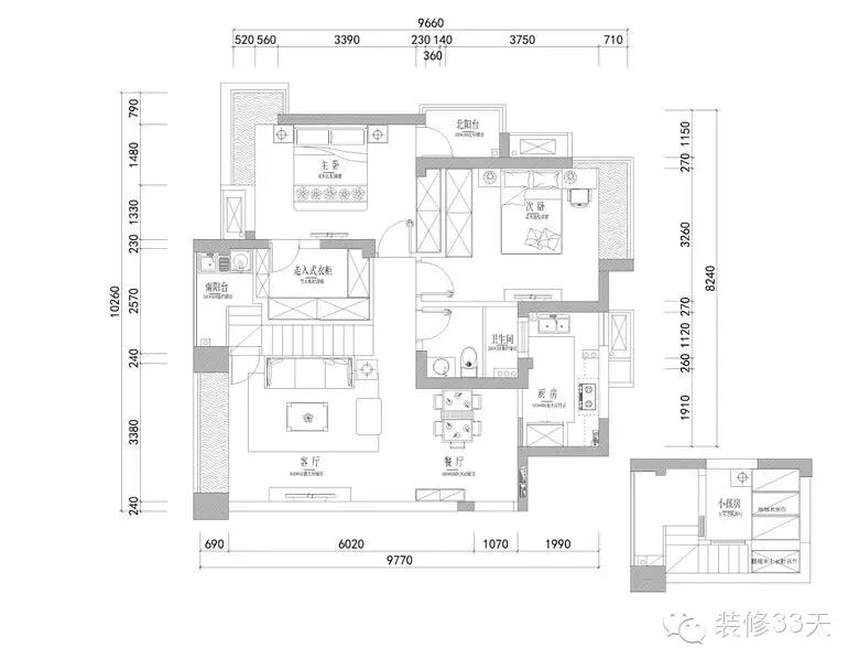
▲ 建筑面积89平,临窗挑高部分做了隔层和楼梯,多出楼上一个7平左右的小房间,装修总花费25万左右


▲ 整体是MUJI风格,给人一种简洁宁静的气氛


▲ 进门之后可以看到整个客厅和餐厅位于同一线上,地面和墙面整体色调用了一种有质感的灰色


▲ 配上原木色的家具,自然的清新感


▲ 背靠楼梯的布艺沙发


▲ 飘窗和江景高层房更配


▲ 硬装无过多造型,全部由家具软装塑造整体风格


▲ 从客厅飘窗望向餐厅


▲ 天花板除了隐藏空调内机位置的必要位置做了吊顶,其他皆以简单的石膏线条装饰,既省钱又干净


▲ 入户位置是餐厅区域


▲ 木质的餐桌椅,玻璃移门之后是厨房


▲ 厨房墙砖和橱柜用了相近的色调


▲ 白色烟机和不锈钢拉丝灶台相配


▲ 由客厅延续进来的灰色大地砖


▲ 楼梯下的空间作为一个洗衣房和主卧的走入衣帽间


▲ 洗衣房


▲ 楼梯向上


▲ 现浇的楼梯加踏步


▲ 楼上总共也就7平左右的一个小房间,花费了现浇隔层和楼梯的代价


▲ 不过拥有的落地窗景色确实不错


▲ 走廊的三个门分别是卫生间、主卧、次卧


▲ 卫生间马桶背后的墙面做了特别设计


▲ 实木浴室柜


▲ 次卧所有家具都是成品家具


▲ 转角飘窗由地板铺就


▲ 主卧也有飘窗


▲ 主卧拥有一个超大走入式衣帽间


▲ MUJI床头柜和床头灯


▲ 原始平面图


▲ 平面布置图

欢迎业主、设计师、装修公司投稿照片
公众号商务合作:king194316


装修33天,33天学装修!提供海量装修美图,实用装修经验,在线装修达人咨询! 作者微信号:zhuangxiu33
你喜欢看