这样的家,才能让人感受到幸福的所在

[复制链接]

16

主题

0

回帖

0

积分

新手上路

积分
0
PChouse家居杂志 发表于 2016-11-16 01:45:40 | 显示全部楼层 |阅读模式


APP Store 排名第一的家居杂志



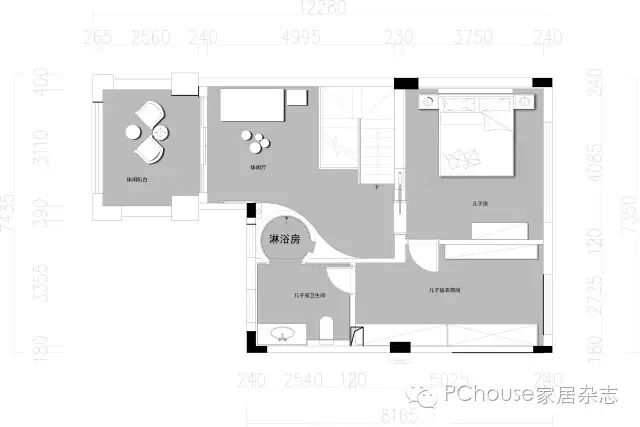
平面图


B1层

一层

二层

三层


编辑、文:信邪
图片来源:成都本吉装饰设计工作室摄影师:李恒
PChouse家居杂志版权所有 · 盗版必究欢迎转载 · 注明出处


最专业的设计师 & 装修达人等你来
关于家装的困惑 总有人为你解答
识别图片 · 验证进入
PChouse读者俱乐部交流群

设计师都扫码关注的
PCHOUSE设计师俱乐部

APP STORE排名第一的家居杂志
PCHOUSE家居杂志 官方微信
关于家居装修的一切
火速扫码关注

商业合作
wechat:PChouse2016
作品投稿568478393@qq.com
▼点击阅读原文 下载你的专属家装手册
最时尚最生活的家居指南!欣赏家居案例、洞悉空间设计、见识潮流单品、潮玩品质生活。家居=品位,关注我,提高你的品位和家居生活。到App Store或各大安卓市场搜索免费下载“PChouse家居杂志”更获得更鲜活家居资讯。 作者微信号:PChouse2012
你喜欢看