138平米现代简欧新古典闪亮闪亮

[复制链接]

28

主题

0

回帖

0

积分

新手上路

积分
0
装修33天 发表于 2016-11-19 20:20:55 | 显示全部楼层 |阅读模式

▲ 进门户型并不是太好,右手边做了鞋柜,功能还算齐全,左手边是一条通往卫生间的走廊


▲ 走廊上设计了干区和洗衣机,边上的矮墙是和餐厅之间的隔断,用了水晶帘子,保证了光线,同时也起到了空间区隔


▲ 利用鞋柜边上的位置还放下了双开门的冰箱


▲ 客厅和餐厅组成的公共空间简洁大气


▲ 白色的铆钉沙发、贵妃榻、加上深色和银色的抱枕点缀,显得雍容华贵


▲ 华丽丽的水晶吊灯,配合亮洁大地砖,烤漆茶几,画框和背景墙线条都采用了带有反光属性的材料


▲ 电视背景用的壁纸和窗帘同色系


▲ 从客厅望向餐厅方向


▲ 紫色绒布套的餐椅,搭配白色餐桌,水晶吊灯


▲ 边柜同时兼具书桌功能


▲ 设计成了活动台面,可以拉出来,方便当书桌用


▲ 半开放式的厨房


▲ 次卧和阳台打通,把阳台空间纳入进来,显得卧室更加宽敞


▲ 阳台设计成休闲区


▲ 主卧床头背景中间用软包做造型,一圈镜面马赛克包围,闪亮闪亮


▲ 飘窗用木材铺,冬天也不会觉得冷


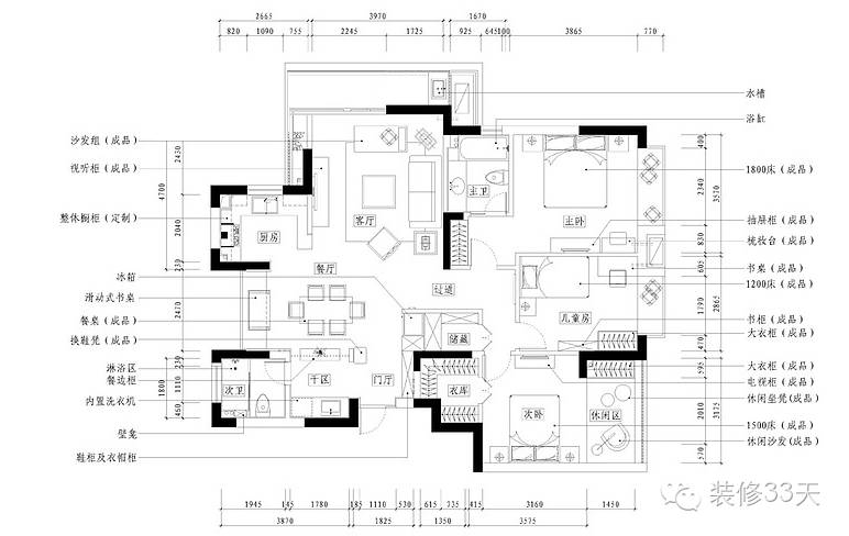
▲ 平面布置图

设计 | 真水无香设计(杭州)
欢迎业主、设计师、装修公司投稿照片
公众号商务合作:king194316


装修33天,33天学装修!提供海量装修美图,实用装修经验,在线装修达人咨询! 作者微信号:zhuangxiu33
你喜欢看