新中式风格设计品味高尚之选!

[复制链接]

30

主题

0

回帖

0

积分

新手上路

积分
0
装修保障网 发表于 2016-11-20 16:15:35 | 显示全部楼层 |阅读模式


装修保障网:您家装的不二首选尝试输入关键词:|卧室|、|客厅|、|阳台|、|卫生间|、|书房|、|办公室|、|隔断|等关键字获取更多精彩内容哦!

新中式设计为中国传统风格文化意义在当前时代背景下的演绎,是对中国当代文化充分理解基础上的当代设计。正所谓取其精华去其糟粕,新中式设计是在中国梦的带领下的新时代创新。新中式提炼了其中经典元素并加以简化和丰富,在家具形态上更加简洁清秀,同时又打破了传统中式空间布局中等级、尊卑等文化思想,空间配色上也更为轻松自然。

简单而又不失大气的入门玄关设计



入门左侧玄关收纳柜充分利用了空间


右侧大理石隔断气质独有


木质地板搭配木质吊顶设计是不是很有范


半开放式厨房与餐厅连接这一个简易的小吧台


从这能一览整个客厅


一排排收纳架组成成了一个简易的小书库阅读好场所


房间之间的过道走廊也采用了木质吊顶设计


卧室的电视强采用了推拉式设计,推上门后面就是你加班加点的绝佳之地了


床与床头设计简单明了

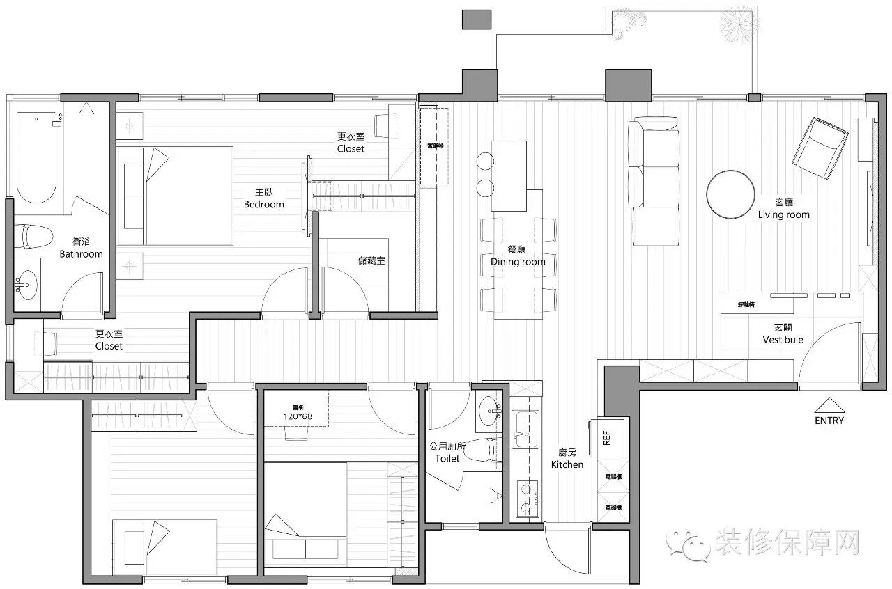
户型图



DIY让你把家里空空的墙角完美的利用起来
这样的中式设计做婚房再合适不过了!
小户型宜家设计 惬意简约没钱就这么装

喜欢这样的设计吗?
留下您的:“昵称+城市+联系方式”,保障网帮你搞定...


猛戳下方的“阅读原文”了解时下更多装修详情!
保障网(www.bzw315.com)是中国最权威的中国装饰行业网站,获取免费设计、免费量房,坐等方案上门;每日分享高质量文章、装修日记、效果图等,望你在装修中有更好的帮助!装修就上保障网,平民价格,贵族享受! 作者微信号:zxbzw315
你喜欢看