90平方现代小清新,装完效果让我感动落泪!

[复制链接]

11

主题

0

回帖

0

积分

新手上路

积分
0
梦想改造家 发表于 2016-11-24 06:07:24 | 显示全部楼层 |阅读模式

足足一年的装修犹如十月怀胎,充满了希望和期待。回想之前,和爱人一起冒雨前往和设计师见面的场景还历历在目。纠结、追求完美是天秤的代名词,但从看到设计师作品的第一眼,就知道这个团队能带给我们想要的感觉。于是,第一次见面就敲定了合约。
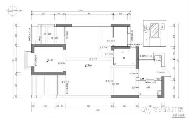
时至今日,我不禁为当初的决定感到庆幸。装修的繁琐和艰辛自不必言说,但设计师的专业和负责让我们分外放心、省心。还记得,因为开发商给出的原始图纸有误,设计师二话不说修改方案;选材料因为约错了地点,设计师马上又从城西赶到了城东;陪我们选沙发过到午后1点,饭都不吃就匆匆赶去约见下一家客户;更不用说后期软装一次次不厌其烦挑选各种小玩意儿……由衷地感叹一句:优秀设计师当如是!
如今,在设计师和装修公司的辛勤努力下,这个“孩子”终于呈现在大家面前。看着自己的小窝,深深觉得:所有的付出都值得!




























想改造房子?有这宏图壮志却没独到的设计眼观?梦想改造家实用改造妙计,给你改造新灵感! 作者微信号:mengxianggaizaojia
你喜欢看