套内就70平看起来却格外宽敞,餐厅隐形门最是亮眼!

[复制链接]

30

主题

0

回帖

0

积分

新手上路

积分
0
装修保障网 发表于 2016-11-24 18:12:34 | 显示全部楼层 |阅读模式

装修保障网:您家装的不二首选尝试输入关键词:|卧室|、|客厅|、|阳台|、|卫生间|、|书房|、|办公室|、|隔断|等关键字获取更多精彩内容哦!

如果你近期需要装修,点击阅读原文,可获申请取多套设计方案!
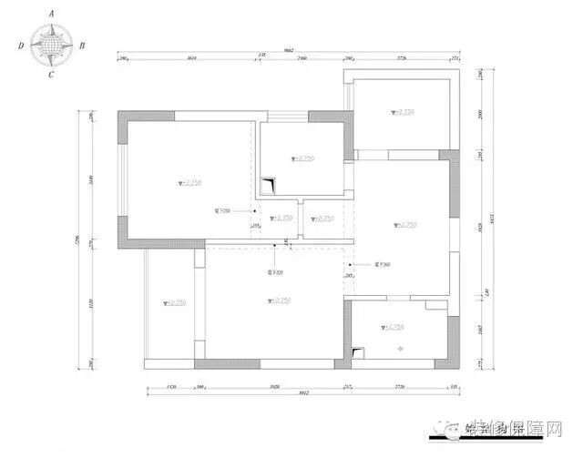
因为房子不是很大,70平两室两厅,所以更注重储物功能和空间的过度不要太生硬,正因为如此所以在整个的布局上整合立面效果和空间格局重组来构造!


原先的过道占用了太多的空间,不实用也浪费,拿掉和部分给厨房,部分给卧室,相对于客厅空间并没有变小,而姑姑喜欢厨房双开门,所以这个地方设计了坡角。对于卧室也有了更多的储物柜。


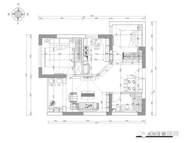
客厅





餐厅
餐厅区域也做了隐形门,所以门关起来的时候真的感觉视觉很宽阔,这里给要给赞


次卧
这个是姑姑自己的房间,虽然不大,储物也绝对强悍,侧边柜子一般是柱子一般是柜子,这里设计的一边是假门一边是真的,不过柜门都选择的镜面,这样平常还可以当穿衣镜用,方便使用美观

主卧
主卧是姑姑公公婆婆的房间,因为老年人不太喜欢颜色太深,所以他们的房间就用了木色来做,老年人住的也不要太压抑,所以在窗帘和软装上选择了草绿色


厨房
厨房这里要单独说下,我很喜欢这里黑色的橱柜了,瓷砖上面就用了对比色,台面做了延伸

卫生间



如果你近期需要装修,点击阅读原文,可获申请取多套设计方案!

床头装饰的美学巅峰还能不能好好睡觉了
30款个性飘窗设计,让窗台成为你家中一道靓丽的风景线!
16年款精品客厅吊顶设计大全喜欢快收藏吧!

喜欢这样的设计吗?
留下您的:“昵称+城市+联系方式”,保障网帮你搞定...


猛戳下方的“阅读原文”了解时下更多装修详情!
保障网(www.bzw315.com)是中国最权威的中国装饰行业网站,获取免费设计、免费量房,坐等方案上门;每日分享高质量文章、装修日记、效果图等,望你在装修中有更好的帮助!装修就上保障网,平民价格,贵族享受! 作者微信号:zxbzw315
你喜欢看