85平现代简约小清新三口之家

[复制链接]

28

主题

0

回帖

0

积分

新手上路

积分
0
装修33天 发表于 2016-11-27 06:09:36 | 显示全部楼层 |阅读模式
点上方蓝字可关注  微信号:装修33天

▲ 半包7万,主材7万,家具软装7万,电器4万,进门是一个储物功能强大的综合柜,一直延伸至电视墙


▲ 淡淡的孔雀绿为墙面色彩,搭配大面积的白色柜门,以及木色的柜体


▲ 电视柜连着进门的柜体,几乎占据了大半部分墙面,足见收纳空间之大


▲ 沙发背景用木饰面处理,延伸了地板以及柜体的木制感


▲ 阳台部分设计成了榻榻米空间,一侧黑板漆,一侧书柜


▲ 除了储物能力的提高,也可以当做临时卧室使用,以备不时之需


▲ 实木餐桌椅造型简单,质感温润


▲ 冰箱从厨房位置迁出来,解放了厨房空间


▲ 香槟色的橱柜,U字形设计,提高了可用台面的面积


▲ 卧室采用了仿地板纹路的墙纸铺贴,皮床时尚感强舒适性高


▲ 深色的中间用白色的衣柜移门平衡整体色调


▲ 儿童房采用了蓝色系卡通图案壁纸,搭配蓝色的床品


▲ 转角的书桌空间利用率很高


▲ 深色的墙地砖填上金色美缝剂,有种低调的华丽感


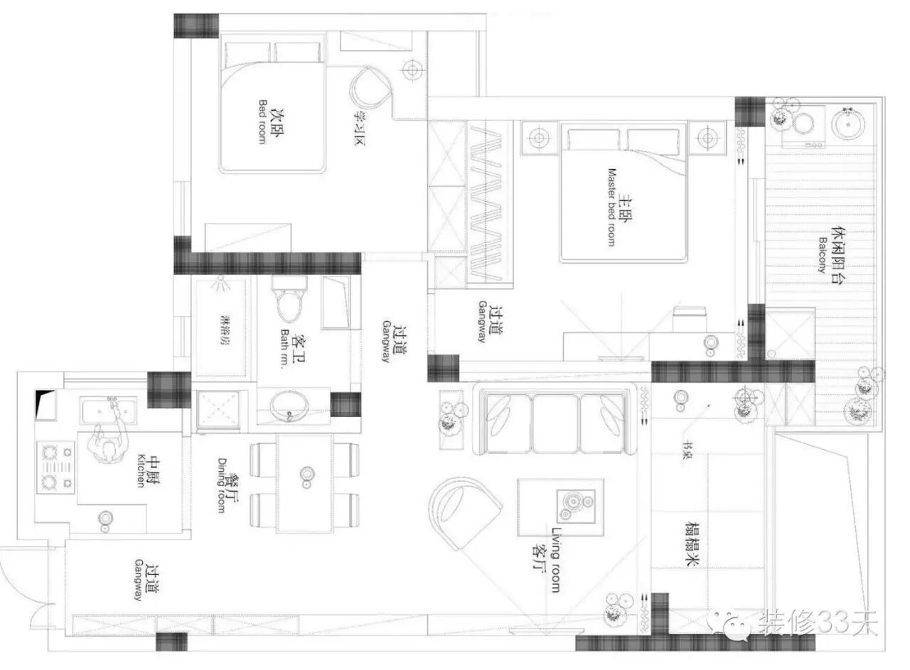
▲ 平面布置图

设计 | 星元设计 鲍振锋(杭州)
欢迎业主、设计师、装修公司投稿照片
公众号商务合作:king194316


装修33天,33天学装修!提供海量装修美图,实用装修经验,在线装修达人咨询! 作者微信号:zhuangxiu33
你喜欢看