89平被设计师装得这么大,邻居看了都羡慕!

[复制链接]

16

主题

0

回帖

0

积分

新手上路

积分
0
全球创意家居馆 发表于 2016-11-27 09:10:51 | 显示全部楼层 |阅读模式

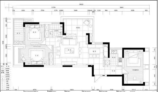
89方,户型还不是很方正,但是赠送面积比较多,所以房子每个房间都还好。前期我一直在找设计,找的我老公都郁闷了,但是真的是各种不满意,感觉现在大部分的设计都是销售性质的,还有总是会跟着业主的思路走,总是看我喜欢什么然后就按照我的要求来,所以寻寻觅觅找到现在的设计师,没有怪异的发型没有标新立异的服装,但是愿意用心去做设计,很好!设计师对我家最大的改变是户型上的,有图有真相!

改变最大的其实是把厨房移位到本来餐厅的位置,这样餐厅和客厅连在一起,空间感瞬间变大,因为本身一开门是厨房感觉风水不好,但是一直不知道怎么改,这样改了感觉本原来舒服很多,当然也是仁者见仁的事情!另外因为家里有个一岁多的宝宝,当时就是想着能够有她更多的活动空间,所以把墙全部打通,整个空间全都通透了。
















北面的房间做了儿童房加书房,现在小孩还小直接放了一个沙发床,有两个大大的飘窗,上面放了懒人沙发,做了大大的书桌,想着一家三口同时在上班做想做的事情也是很幸福的一件事情,还给宝宝做了大大的软木板,可以放照片,也可以以后宝宝画的画都给她展示在这里


厨房卫生间比较简单,但是好在都有大大的窗户,也还比较舒服,因为考虑小孩子要洗澡,所以还是用了一字型的淋浴房,可以放小孩洗澡盆。厨房考虑好打扫用了亚克力的面板,推荐下大单盆,大大的洗锅都感觉很爽!

微信领域唯一的一个创意家居微信号,每天搜罗全球各种时尚家居设计和各种新奇前沿的家居产品信息,想知道怎么扮靓自己的小窝窝吗?那就赶紧加我的微信号吧:chuangyijiajuguan。 作者微信号:chuangyijiajuguan
你喜欢看