90平现代简约LOFT 空间不大功能俱全

[复制链接]

28

主题

0

回帖

0

积分

新手上路

积分
0
装修33天 发表于 2016-11-27 09:33:01 | 显示全部楼层 |阅读模式

▲ 紧凑的Loft小户型,以简约的小清新风格为主,融合加入了日式、北欧等各种风格元素


▲ 挑高的客厅,电视背景用多层隔板装饰,同时也兼具了书架、置物等功能


▲ 淡淡的布艺沙发搭配原木茶几,自然清新


▲ 比较矮的隔层空间设计成餐厅,经常坐着的空间也不会受太大影响


▲ 卡座的设计提高了空间利用率,节省空间同时兼具收纳


▲ 简单的木质餐桌,铺上蓝色桌布和桌旗,压上透明的垫子,实用的同时颜值也不错


▲ 厨房设计了转角吧台,可以吃个早餐


▲ 和客厅之间用玻璃窗隔断,采光和视野更加好,同时也不会受到油烟的影响


▲ 主卧的落地窗可以看到客厅,光线和通风都很有利


▲ 床头背景用地板上墙,加上一组清新装饰画


▲ 连小角落都利用起来


▲ 衣帽间也有了,虽然面积不大


▲ 粉紫色的儿童房


▲ 简单却也不失精致


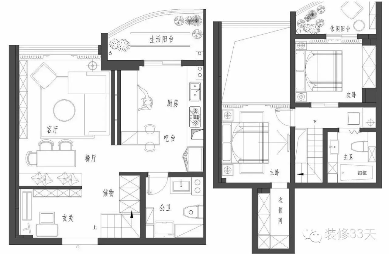
▲ 平面布置图

设计 | IWOWO HOME设计 孟冬(北京)
欢迎业主、设计师、装修公司投稿照片
公众号商务合作:king194316


装修33天,33天学装修!提供海量装修美图,实用装修经验,在线装修达人咨询! 作者微信号:zhuangxiu33
你喜欢看