如何用118平做出150平的户型效果?

[复制链接]

14

主题

0

回帖

0

积分

新手上路

积分
0
地产总裁内参 发表于 2016-12-1 01:33:45 | 显示全部楼层 |阅读模式
老潘说
1,什么是好房子? 面积大,朝向好,房子多,这是1.0时代的思考;而让居住更强调舒适性,关注空间尺度实质性的居住体验,真正为住家人性化极致的空间优化,这是2.0时代好房子的考量。

2,好房子仅看是不够的,往往住过才知道好不好——现实中,很多人往往买了100平米的3房,但却住出80平米的2房感受;同样,也有人买的是118平米的3房,但实际住下来却感觉到享受了空间放大30%,宽绰4房的体验,后者正是体验好房子、好设计的功力。

3,白银时代,房地产回归产品和服务原点,整个行业2015年、2016年都在谈产品匠心,但真正做出来好的匠心产品,好的户型并不是太多。最近南京世茂成品就说到做到,硬是用118平米,通过建筑空间和居住功能的多次重构,一下子让你的家的空间和居住体验放大了约30%,完全营造出150平米的空间体验。

推荐地产营销和产品研发的朋友看看!
住房将回归居住本质,作为适合更多人、更长居住时间的中段户型,针对客群特点,其居住的可能将会更多。通过多年对舒适生活的深入研究,世茂生活研究中心将原有建筑空间进行重构,用一个“设计模术”,让你的家看起来像放大了30%左右!

通过用模型化数据,对空间进行重构,全新的118户型,获得了空间视觉上的极大提升,仿佛让家多出了30%的空间,无论是舒居还是传承,都游刃有余!

.
(示意图)

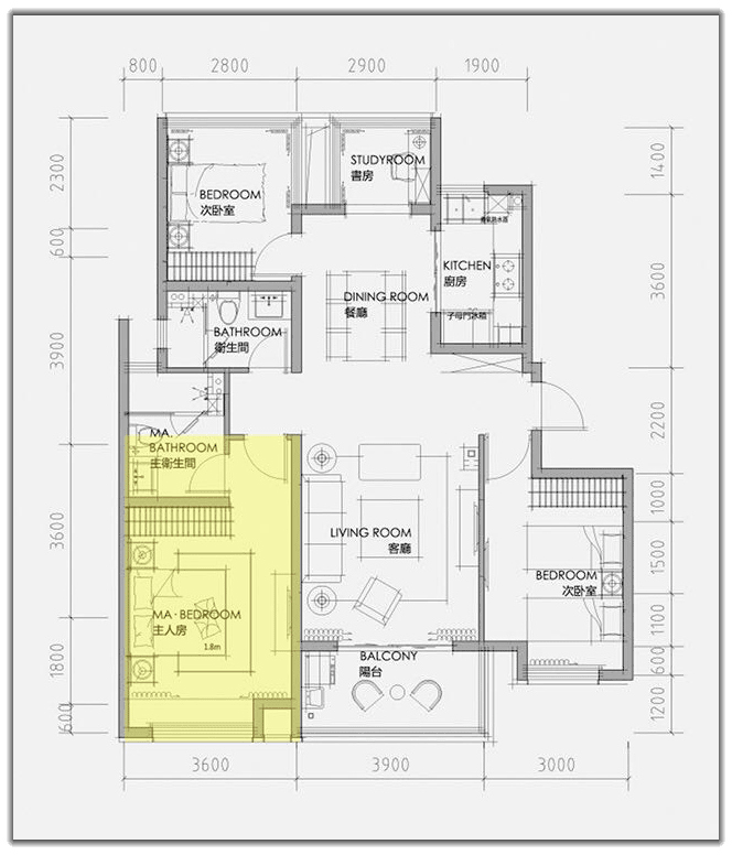
户型档案
面积:约118㎡
套型:3+1室2厅2卫
项目:南京世茂城品

就爱大尺度

这是一个第一眼就能爱上的大尺度空间居所。进门后,即可见面宽近4m,进深超过10m,面积超过30㎡的通透公共区域,客厅+餐厅的尺度感,在进门的一瞬间,就已经足够惊艳。

(实景图)

(示意图)
传统户型结构,为了能做到动静分离,多采用狭长的过道,串联居住空间,这种方式,虽然能获得较好的功能划分,但一定程度上浪费了空间面积,阻碍视线延伸,缩小空间视觉感,同时卧室与卧室之间由于挨得太近,私密性难以保证。

世茂城品,创新的户型结构,采用十字轴布局,将居住区巧妙的分布于功能区周围,仿佛小时候居住的院子,中间以公共区域串联独立于四角的卧室空间,让四个独立房间既能共享公共空间带来的功能便利,又能保持各自独立的空间居住感。

(示意图)
独特的格局设置,不仅让四个房间平等的参与对话,更好的保持各自空间的私密度。减少走廊等过渡区的使用,避免了更多形式空间的实际浪费,高达约83%的得房率,为四居的套型设计提供了前提,将居住者的居住舒适性提升到前所未有的高度。

(示意图)
3+X布局分布,赋予房子更多的生命力。主要空间:主卧、客厅、次卧朝南设计,厨房、书房等功能空间排在北面,也为整个户型争取了尽可能多的采光照明,降低能耗的同时,更让人产生大空间的即视感。

通过对次卧室及X空间的不同改造及利用,让房间适应居住者不同阶段的生活需求,成为一个全龄化居住空间,为其“大”增加了时间的丈量维度。


有颜有内涵

一个约118㎡的户型,做到4(3+1)室2厅2卫的空间套型,你可能会担心,住起来显窄,因为有了多个房间,公共空间肯定会小,如果再保证公共空间的大尺度,那么居住空间会不会到了不忍直视的地步?如何拥有一个大尺度公共空间+舒适多房间的房子?世茂通过全数据化的尺度分析,给了这个有颜有内涵的城品118。
1、客厅

(示意图,图片来自网络)
舒适三人沙发长度一般为2m,深度为0.9m;双人沙发长度一般为1.45m;单人沙发长度一般为0.95m; 电视柜深度0.6m;茶几一般长1.2m,宽0.8m。

城品118给出一个面宽约3.9m,进深超过3.6m的宽大舒居尺度的客厅,单客厅的面积已经超过14㎡,足以满足家人与朋友共聚的“大”需要。

(示意图)
加之客厅朝南的设计,并配备宽度约1.8m的矮墙垛观景阳台,将室外引入室内,增加的采光,使空间尺度进一步放大。

(示意图)
2、餐厨
餐厅面宽约2.9m,进深达约3.6m,面积超过10㎡,与客厅及厨房的呼应对话,可在人多时向双空间“借”位,向北面“借”光,即便10人用餐,也能轻松应对。

(示意图)

U型格局的厨房,橱柜沿着两面相邻的墙布置,目前被公认是最高效且实用的厨房布置,但一个厨房不是你想U就能U,一个U型厨房的最小净宽要求1.8m以上,最小净长3m以上,城品118的厨房宽达约1.9m,长约3.3m,舒适的厨房尺度,足以放下功能齐备的橱柜及冰箱等厨房设施,让烹饪过程更加方便、惬意。

(示意图)
大面宽的开门设计,极大的增加了餐厅与厨房之间的互动,也能让整个用餐区域,更加通透,开阔,常规放置一套六人位餐桌椅,也不会显得局促。

(实景图)
3、卧室一张舒适双人床的长度是2m,自由行走的过道宽是1m,城品面宽约3.6m的主卧空间,可以轻松放置双人床的同时,还能摆放一张床尾凳。

(示意图)

(示意图)
南向双卧室均有深达约0.6m的凸窗设计,让空间外向延伸最多达3㎡,尺度豁然开阔。

(示意图)
无套房不舒适。主卧套房设计,让主人的居住独立性更强,宽约2m,进深约2.6m的主卫空间,舒适恰到好处。

(实景图)
北面的卧室和X空间配有超大的约270度转角窗,极优化的日照采光,将空间放大,无论是做书房还是儿童房,都能实力担当。

(实景图)
约118㎡的房子,做出了超越平庸居所的极大尺度感,不得不说,这是世茂对户型的极大优化。对每一寸土地的尊重,也是对人文的关怀,在这个大不同的“院落”居所,或许,你可以看见未来幸福的模样。

(实景图)

每一个死磕产品的开发商都值得点赞!

老潘就研究2个东西: 1,企业层面,专注百强房企战略观察; 2,产品层面,专注中国豪宅产品创新! 微信号:dczcnc
你喜欢看