杭城小夫妻爆改98㎡新中式,开放式布局逆袭200㎡豪宅!

[复制链接]

12

主题

0

回帖

0

积分

新手上路

积分
0
好室 发表于 2016-12-5 01:36:40 | 显示全部楼层 |阅读模式
中式风在你心里是什么印象?雕梁画栋,紫檀红木?
我们都知道对于如今的年轻人中式早已经变成了另一番模样新中式既有中国传统文化的沉淀也有新思想,不失精致内涵

在杭州有这一对夫妻,因为兴趣相投而结合,而他们的兴趣竟是被大多年轻人遗忘的中国情结。所以不约而同地,两人都默契地想把家里打造成新中式风格,只是房子面积只有98㎡,怎么样打造才能让家里看起来更大气,和新中式更融合呢?



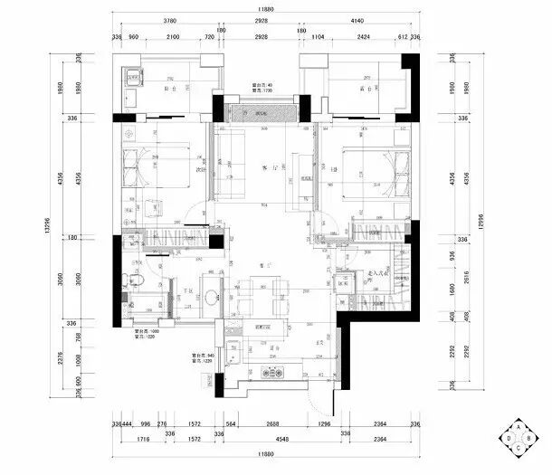
男主人说刚买来的房子户型结构一般,采光不好,梁多,整体的空间很散,于是他们就跟设计师沟通了自己的想法。设计师打破将原有户型的的隔断,规划出开放式功能区,弥补了原户型的劣势,采光问题解决了,整个空间也被改造得完整又连贯。


改造后的户型平面图。



▲ 中式元素混搭,韵味十足的客厅一角。


▲把原有结构的隔断都敲掉,这也是小户型扩容的秘诀之一。(改造后的客厅是原来的卧室)


▲裸墙装饰,避梁包柱设计,弱化梁多带来的不舒适感。


▲棱角分明的天花板石膏线设计。


▲卫生间干湿分离设计,用矮墙做隔断划分功能区。


▲客厅沙发背景墙、通往卫生间的过道墙面、以及用餐区的隔断矮墙,皆是采用裸墙处理的手法。白色的砖墙相比较其他裸砖墙而言,少了一份粗犷,多了一份雅致。


▲线条感十足的天花板设计、精致灰绿的门及护墙板,带有中国风元素的工业灯,慵懒舒适又低调朴实。


▲实木沙发椅,装饰挂画,陶瓷摆件,有一点北欧的感觉,又带有中式的元素。灰绿色的飘窗台设计实用又好看。


▲用餐区和卫生间门口的干区洗手台位置以矮墙和风水镜做隔断,开放式的功能区保证采光和通风。


▲屋子的风水中心——双面镜子,形状有圆有方,寓意天圆地方。镜子既是装饰物也是卫生间干区洗手、整理妆容的必备之物。

▲现场安装过程,师傅准备打造厨房橱柜。


▲部分安装工作完成,可以窥见厨房橱柜的雏形了。


▲厨房采用开放式设计。橱柜的平面布置成U型,方便洗切煮的操作流程。


▲厨房与用餐区的隔断,做成了吧台的形式,可以作为餐厨空间的岛台使用。


▲厨房橱柜近照。高吊柜增加收纳空间,与抽油烟机同一条直线安装,整齐有序,化解了抽油烟机的突兀感和厚重感。


▲用餐区旁边隔断墙上做了一排收纳柜,屋主要用于摆放一些装饰物,玻璃柜门设计避免灰尘积累,方便清洁,


四人位的实木餐桌椅,紧挨着厨房吧台摆放,木纹质感十足,低调而奢华。


▲餐厨对面是冰箱放置区,装饰板墙中隐藏了一扇门——此所谓隐形门设计也。


▲卫生间虽说做了干湿分离,但是很明显屋主在卫生间里边同样保留了洗手台。这样家中就有两个洗手盆(另一个在过道中),方便家人同时使用。


▲主卧墙上的床头灯设计,再也不用担心放在床头柜上霸占位置了。


▲主卧整体搭配比较清新,屋主说不喜欢厚重感,这样清浅的色调就很好。


▲次卧同时兼书房和客房使用。屋主说以后会做为小孩房。


▲次卧的床头灯与主卧是配套的,装修风格同样简约而不简单,软装和家具皆以实用为主。



腾讯大浙网家居频道,菜鸟装修第一站。抢先知晓最新家居资讯,为你提供家居设计、装修、材料购置等一切有用信息。 微信号:dazhejiaju
你喜欢看