空间这么用,29㎡小公寓也能舒服住!

[复制链接]

28

主题

0

回帖

0

积分

新手上路

积分
0
装个好房子 发表于 2016-11-30 14:49:49 | 显示全部楼层 |阅读模式


房子小,也要大气过生活!
波兰?弗罗茨瓦夫

房君今天看到朋友圈的一篇文章《你的工资能在北京哪个区买房?!》,然后整个人就不好了,朝阳、海淀啥的根本买不起,即使在延庆买房,也要月薪不低于2W……就这样默默地关闭文章,然后静静地看了会儿远方,决定今日推送一篇小户型案例给自己打气,只要设计的好,小房子也能住得很舒服!



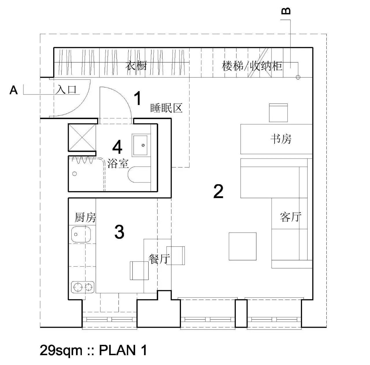
平面图▼

房子是在波兰的弗罗茨瓦夫,只有29㎡,不过好在层高有3.7m,利用高度在走廊和浴室上面搭出一个睡眠区,剩下的厨房、餐厅、客厅、书房都做了开放式的设计,这样会显得空间比较大。


黑白小方砖铺出了一条入口走廊的通道。3.7m的空间,睡眠区占去了1.35m,虽然人不能站立,但睡觉还是很宽敞的;下面1.85m一边是浴室,一边做了通高的衣柜,整整一堵墙的柜子,解决了收纳的问题。


简洁的厨房,周边的空间都做了封闭式的橱柜,这样显得干净利落,小小的吧台也可以用作餐桌。


白色的橱柜配黑色的墙壁,好酷啊!


会客区是简洁的沙发和小几


紧挨着沙发放了工作台



步入睡眠区的楼梯,下面拿来做书柜,空间真是一点也没有浪费~


从睡眠区看向客厅和书房。房君发现沙发也可以作为临时床铺,这下客房都有了,哈哈!谁现在还记得这房子只有29㎡呀!

从客厅看向楼梯~房友们有没有注意到,房子里好多家具和搭建睡眠区都用到了一种材料——定向刨花板,也有叫欧松板的,它承重抗压,保温防潮,甲醛释放小超小。房君在好多建筑师的工作室都见过这样的家具呢~


在入口对面的墙上安装了一扇假门——假装还有一间房,哈哈!我真心服了房主,超级幽默~

— end —



设计:3XA
装个好房子出品
公众号如需转载本文,请后台回复“转载”获取授权图
转载无授权图一律举报处理!
注:转载必须保留屋主信息,否则视为侵权
投稿、合作 请邮件至:ihaofangzi@qq.com

装个好房子
探寻美好居住方式,一起装个美美的家

▲ 长按二维码,关注装个好房子

精彩推荐(▼点击图片跳转)



你可能还想读(▼关注后后台回复数字)
回复『1』『原创』| 查看【i好房子】系列文章
回复『2』『玄关』| 查看玄关的设计和装修
回复『3』『厨房』| 查看厨房的设计和装修
回复『4』『客厅』| 查看客厅的设计和装修
回复『5』『阳台』| 查看阳台的设计和装修
回复『6』『卧室』| 查看卧室的设计和装修
回复『7』『收纳』| 查看收纳技巧
回复『8』『飘窗』| 查看飘窗的设计和装修
回复『9』『背景墙』| 查看背景墙的设计和装修
回复『10』『卫浴』| 查看卫浴的装修和设计
回复『11』『儿童房』| 查看儿童房的设计与装修

喜欢就按个再走啦~
探寻美好居住方式,一起装个美美的家!分享好案例、好攻略、好经验,汇聚社群力量,让你在装修中少走弯路。涉及家装设计、房屋改造、节能环保、智能家电等跟家装相关的内容。关注后可申请加入讨论群! 作者微信号:ihaofangzi
你喜欢看