都说黑白灰有点冷,那灰白橙你试过吗?

[复制链接]

28

主题

0

回帖

0

积分

新手上路

积分
0
装个好房子 发表于 2016-12-5 15:49:31 | 显示全部楼层 |阅读模式


温暖甜蜜,橙意满满!

江苏?常州 From:一兜糖
ID:yidoutang123

都说冬天是个容易得上抑郁症的季节,的确外面都光秃秃的,让人有些打不起精神,如果雾霾袭来,那更是心烦。所以房君今天安利一个甜蜜指数超高案例,大家一起温暖甜蜜过冬天。



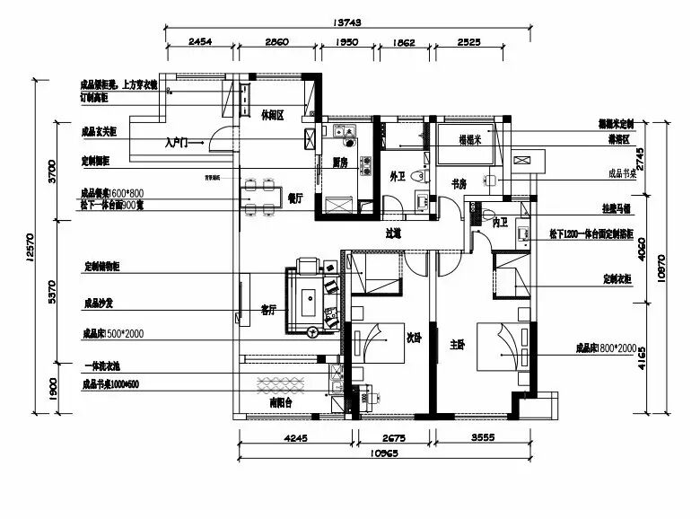
平面图▼
房子面积143㎡,三室两厅两卫。屋主有个女儿,希望家里多一点温馨,多点留白,给孩子一个能敞开着跑的一个地方。

厨房▼

房君今天先上厨房哈,因为暖暖橙色让人看着就开心,屋主也是一看到厨房就有一种想做饭的冲动!


橙色的墙砖,切割了小砖工字贴,地砖灰色,其余的橱柜台面冰箱均是全白,屋主是颜控,就爱很纯粹的颜色。家里基本上是白灰黄三种色调。


白色杜邦台面,配toclas芒果橙色水槽,这颜值杠杠的~


抽拉龙头,可变换花洒模式,洗菜、洗碗水花也不会乱溅了~边上是净水龙头,小巧的净水装置,方便更换,前置自带压力表。


水槽角落里是内嵌式洗碗机


安装了净水设备


玄关

带着喜气洋洋的心情再来看看玄关。进门是不是有日剧的感觉呀!


换鞋凳、衣架、穿衣镜都是实木


温暖的小黑板


还有大大的鞋柜

客厅▼

实木地板,开阔的空间,满足屋主女儿敞开跑的愿望。


简简单单的斗柜和电视柜,淡黄色墙面透着温暖的味道,其实家就应该是这样!


沙发后面砌了个半墙,上面铺了实木板,将来放一些装饰品,目前只有一个表,后期慢慢填补。


屋主对这个是一见倾心,符合她黄白灰主体色调的要求,挂起来的效果也是棒棒的!

餐厅▼

餐桌椅也是实木的,这个时候能感觉出来屋主是一个日系控了吧~


素雅的桌旗和实木餐桌很配哦~


餐厅望向客厅

书房&客卧▼

榻榻米真是个居家小能手,既能当床用,也可以收纳。房君暗表一下,那个帘子下面是书柜哈,屋主怕脏挂了帘子。


坐在这里静静的喝杯茶也是极好的。


实木书桌

主卧▼

卧室也是温暖系,实木家具和黄色的墙。

主卧有一个卫生间,还有一个衣帽间。


大家是不是以为卫生间铺装了马赛克,错!这是壁纸哦~




说到墙纸,房君要说下,这个家的墙都贴了日本产的一种墙纸,很多人误以为是硅藻泥,非常有质感,而且还很好打理,孩子不小心弄脏了,拿块湿毛巾擦一下就干净了!

女儿房

女儿的房间以粉嫩为主


Heello kitty的墙纸


临窗放了书桌。


窗户也安装了百叶窗,不然光太强会伤到眼睛,真是个贴心的妈妈!


次卧也有一个衣帽间,目前还有点空,孩子大了,估计会装得满满的。

卫生间▼

房君想说,明明是卫生间为啥弥漫着浪漫唯美的气息呢?!


淋浴空间是橙色的,干区是灰色的,真的很好看~


这才是刷牙杯正确的打开方式~倒着放杯子,不容易滋生细菌


大气的灰白

阳台▼

洗衣房安置在明亮的阳台上,洗衣观景两不误。


这一整面色的墙面正等待着一大波绿植来袭!


— end —


来源:一兜糖屋主@嘟嘟妈

好房子重新整理编辑
本文谢绝转载
投稿、合作 请邮件至:ihaofangzi@qq.com

装个好房子
探寻美好居住方式,一起装个美美的家

▲ 长按二维码,关注装个好房子

精彩推荐(▼点击图片跳转)



你可能还想读(▼关注后后台回复数字)
回复『1』『原创』| 查看【i好房子】系列文章
回复『2』『玄关』| 查看玄关的设计和装修
回复『3』『厨房』| 查看厨房的设计和装修
回复『4』『客厅』| 查看客厅的设计和装修
回复『5』『阳台』| 查看阳台的设计和装修
回复『6』『卧室』| 查看卧室的设计和装修
回复『7』『收纳』| 查看收纳技巧
回复『8』『飘窗』| 查看飘窗的设计和装修
回复『9』『背景墙』| 查看背景墙的设计和装修
回复『10』『卫浴』| 查看卫浴的装修和设计
回复『11』『儿童房』| 查看儿童房的设计与装修

喜欢就按个再走啦~
探寻美好居住方式,一起装个美美的家!分享好案例、好攻略、好经验,汇聚社群力量,让你在装修中少走弯路。涉及家装设计、房屋改造、节能环保、智能家电等跟家装相关的内容。关注后可申请加入讨论群! 作者微信号:ihaofangzi
你喜欢看