47㎡酷酷工业风单身公寓,跟死板的隔墙说拜拜!

[复制链接]

28

主题

0

回帖

0

积分

新手上路

积分
0
装个好房子 发表于 2016-10-31 18:48:00 | 显示全部楼层 |阅读模式


空间再小,
也要精致生活!
  俄罗斯 ?莫斯科   
房子是一个建筑面积47㎡的“大盒子”。为什么说是大盒子呢?因为,这个房子没有承重构件,说白了就是没有墙!房君之前介绍了非常多的改造住宅,第一项肯定是砸墙,像这样空空如也的房子,屋主可以随着自己的喜好随便划分。没有噪音,没有装修产生的垃圾,也不用担心物业罚款,大家是不是觉得这样的房子比较好呢?



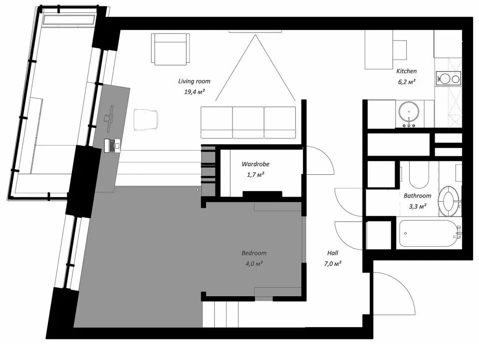
平面图▼

先上一张平面图哈,看看设计师是怎么分配空间的。设计师在屋子中间做了一个多功能木结构,它包括工作区、睡眠区、投影室区、衣帽间、沙发区;围着这个木结构的空间是:客厅、厨房、卫生间;还有一个四通八达的走廊。

会客区▼

进门先看到客厅的绿色沙发和壁挂式电视机,还有远处的厨房。沙发正好嵌入到多功能木结构里,上面和侧面木格,用来收纳图书。这个区域可以作为会客区,也可以作为书房使用,沙发旁边安装了小巧的壁灯,方便阅读。

工作区▼

沿着窗台以及旁边的墙壁安置了长长的实木桌。把采光最好的地方用来办公,看来屋主一定是个热爱工作的进门青年~


从对面的角度看过来,充足的阳光,后面就是书架,拿取资料会非常的方便。

投影区▼

从台阶上来,就是一个实木坐塌,放有灰色懒人沙发。白天在窝在沙发里晒太阳也是个不错的选择。如果来了朋友,也可以当作客房,温暖的实木也不会冰冷~


拉下遮光的卷帘,对面的白墙秒变屏幕,小型影院立即呈现,这个画面这有点导演厅的意思!

睡眠区▼

这个4㎡大的空间就是卧室了,虽然在一个木盒子里,装了窗户后就不会觉得那么憋闷了~床的一侧是书架,另一侧室小巧的床头柜,还安装了壁灯。窗户和“门”都安装了卷帘,可以保护隐私。


看下细节哈,这边是壁灯和床头桌。




多功能木结构的全景。生活空间紧凑合理的在一起

走廊区▼

从这个台阶下来,就走到多功能木结构的后面了。这条长长的走廊,始终围绕着木结构,大家跟房君一起往前走~


从侧面的窗户望向睡眠区。


从后面的窗户望向睡眠区和投影区。


然后是长长的走廊~混凝土的屋顶白色的墙和地面,以及原木色的多功能木结构,构成了房子主色调。走廊的末端还安装了镜子,让视觉有了延伸,觉得这个走廊好长好长~看到木结构上有一个把手了吗,那个是屋主的衣帽间,对面是浴室,这个设计非常合理哦~


走廊经过衣帽间,卫生间,厨房,然后就绕回到客厅,然后从台阶上去是工作区。看清楚了吧,这个走廊是能围着多功能木结构转一圈的~房君想说,在这里玩捉迷藏一定非常有意思!

卫生间▼

卫生间酷酷的,混凝土的墙壁,白色的极简卫浴和地板。屋主一定是个工业风控!

厨房▼



精致的小厨房,风格延续了整个家的酷酷工业风。

— end —


设计:Ruetemple
好房子综合整理编辑
投稿、合作 请邮件至:ihaofangzi@qq.com


装个好房子
探寻美好居住方式,一起装个美美的家

▲ 长按二维码,关注装个好房子

精彩推荐(▼点击图片跳转)



你可能还想读(▼关注后后台回复数字)
回复『1』『原创』| 查看【i好房子】系列文章
回复『2』『玄关』| 查看玄关的设计和装修
回复『3』『厨房』| 查看厨房的设计和装修
回复『4』『客厅』| 查看客厅的设计和装修
回复『5』『阳台』| 查看阳台的设计和装修
回复『6』『卧室』| 查看卧室的设计和装修
回复『7』『收纳』| 查看收纳技巧
回复『8』『飘窗』| 查看飘窗的设计和装修
回复『9』『背景墙』| 查看背景墙的设计和装修
回复『10』『卫浴』| 查看卫浴的装修和设计
回复『11』『DIY』| 查看实用、有趣的DIY

喜欢就按个再走啦~
探寻美好居住方式,一起装个美美的家!分享好案例、好攻略、好经验,汇聚社群力量,让你在装修中少走弯路。涉及家装设计、房屋改造、节能环保、智能家电等跟家装相关的内容。关注后可申请加入讨论群! 作者微信号:ihaofangzi
你喜欢看